
Farmhouse
Location: Blue Mountains, NSW
​
Program: Hospitality Design
​
When: 2021
​
Software used: SketchUp
Site Location
Just over an hour west of Sydney, the Blue Mountains are famous for its stunning and dramatic landscapes. It includes sheer cliffs, eucalyptus forests, waterfalls, and villages dotted with guesthouses, galleries, and gardens. The Blue Mountains are known for their high sandstone ridges covered with native shrubs. Beautiful mountain villages nestled in the wilderness, ancient tribal rock paintings and iconic sights.
Note. Google Maps. (2022).

Design Brief
-
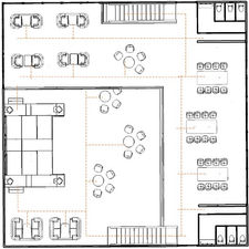
Design a restaurant bar
-
Focus on social inclusion and design a social space that encourages interactivity
-
Focus on musical entertainment and design a designated space for a band/live music entertainment
-
Branding to be incorporated in the design
-
Round and rectangular tables wanted
-
Booth seating areas wanted
-
Spacious seating areas
Concept Development

Staircase and Bar Sketches


Farmhouse Bar provides an old-fashion bar experience with a modern touch. The concept is to bring in a country aura, where Farmhouse offer live music entertainment with an exquisite dine-in experience.

Materiality
The colour palette in this project is based on an old-fashioned stripe with a modern twist. By using raw materials and dark colours, I designed was able to capture this aura of the country in my bar. Focusing on the placement of the live bar, we were able to create a large seating area with booths on either side of the bar and nice plush seating between the counter and the live music.
Documentation
It heightens the overall dining experience, achieves a refreshing, and gives a more modern appearance.
I was able to increase the floor area of the space by connecting a mezzanine level and used it as a stylish way to add that extra space.
3D Renders

























